Gateway

Vacant acreage sells in Gig Harbor. Here’s what’s planned for the property

Key Takeaways
Key Takeaways

AI-generated summary reviewed by our newsroom.

Read our AI Policy.


  • Investors closed on nearly 4.5 acres at 9411 Burnham Drive for $3.4 million.
  • Plans include nearly 80 units in five, 3-story buildings plus community building.
  • Final short plat, building permits are currently being reviewed.

Plans for an apartment multiplex in Gig Harbor took another step forward with investors acquiring the property this month.

Three LLC entities representing local investors closed on the sale of nearly 4.5 acres at 9411 Burnham Dr., east of state Route 16.

The parcel was acquired from the estate of a former Gig Harbor landowner for $3.4 million, according to Pierce County property records.

Representatives of the LLCs did not immediately respond to request for comment.

According to permits attached to the parcel, plans for the nearly 80-unit apartment complex have been in the works since developers filed for a pre-application conference in 2015.

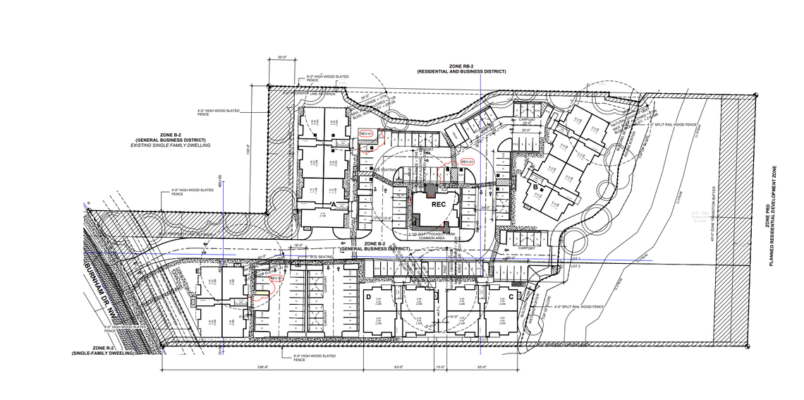
Plans call for five, three-story apartment buildings, a community building with leasing offices and associated parking.

Information with the site’s alternative landscape plan notes, “The site is generally hilly and a ravine with associated steep slopes exists near the eastern property line. This ravine area is to be left in a natural state.”

Renderings show a mix of one- and two-bedroom units.

A site map rendering submitted to the City of Gig Harbor for the Burnham Drive apartment site, 9411 Burnham Drive.
A site map rendering submitted to the City of Gig Harbor for the Burnham Drive apartment site, 9411 Burnham Drive. Ross Deckman & Associates Courtesy

Eric Baker is community development director for the city. He confirmed with The News Tribune that the project for market-rate units has been in the works for several years.

“We’ve had ebbs and flows in projects for a wide variety of reasons,” he said, “just a general market, interest rates, changing ownerships.

An early rendering for an apartment complex planned for 9411 Burnham Drive in Gig Harbor.
An early rendering for an apartment complex planned for 9411 Burnham Drive in Gig Harbor. Ross Deckman & Associates Courtesy

“We have a number of these projects that are all now starting to come to fruition, or in certain cases, we’re actually talking about transitioning into something different.”

Other than number of units, this site has stayed consistent with its plans, past applications show. The project’s final short plat is listed as under review on Gig Harbor’s permit portal with subdivision still to be approved, “but is also significantly down that road to getting approved and ultimately recorded,” Baker said.

“All the building permits are in and currently all being reviewed,” Baker added. “So, yes, this project is moving forward.”

Debbie Cockrell
The News Tribune
Debbie Cockrell has been with The News Tribune since 2009. She reports on business and development, local and regional issues. 
Get unlimited digital access
#ReadLocal

Try 1 month for $1

CLAIM OFFER